I'M INTERESTED

Reference Number : 30784

575sqm Commercial Office building

For Rent
Larnaca, Agios Nikolaos
€ 10.000
575

OVERVIEW

Floor:

3

Status:

Under Construction

Energy Efficiency Rating:

A

Total Floors:

3

Internal area:

575 m2

Category:

Commercial rent

Under Construction:

Yes

Covered Area:

575 m2

VAT:

NO

Rent Frequency:

Monthly

FEATURES

CCTV Provision

Double glazing

Easy access to main roads

Near amenities

Near bus route

Thermal insulation

FACILITIES

Air Condition

Elevator

PROPERTY DESCRIPTION

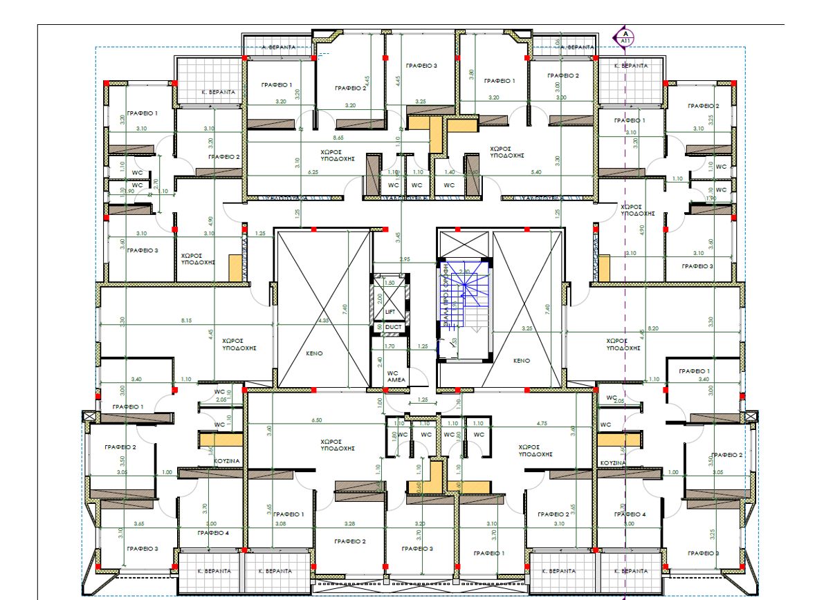
Modern Office Space – Entire 3rd Floor | 575 sqm | Agios Nikolaos  Larnaca

A premium, under-construction office space of 575 sqm, ideally positioned on a Busy Avenue. 

Occupying the entire third floor, this property is designed to offer a contemporary working environment with high-end specifications, excellent visibility, and outstanding accessibility.

Key Features:

• Raised floors
• Suspended ceilings with LED lighting
• Split-unit air conditioning
• Double-glazed windows with blinds
• Glass partitions
• Cat6 structured cabling
• Power & data points throughout
• Intercom & CCTV provision
• Emergency lighting
• Equipped kitchens
• WCs including disabled-access WC
12 dedicated parking spaces

The internal layout can be customized to suit specific business requirements, making it ideal for corporate headquarters, professional firms, or growing enterprises.

Completion: Expected September 2026

An exceptional opportunity to secure a modern office in one of Larnaca’s most prominent commercial locations.

Modern Office Space – Entire 3rd Floor | 575 sqm | Agios Nikolaos  Larnaca

A premium, under-construction office space of 575 sqm, ideally positioned on a Busy Avenue. 

Occupying the entire third floor, this property is designed to offer a contemporary working environment with high-end specifications, excellent visibility, and outstanding accessibility.

Key Features:

• Raised floors
• Suspended ceilings with LED lighting
• Split-unit air conditioning
• Double-glazed windows with blinds
• Glass partitions
• Cat6 structured cabling
• Power & data points throughout
• Intercom & CCTV provision
• Emergency lighting
• Equipped kitchens
• WCs including disabled-access WC
12 dedicated parking spaces

The internal layout can be customized to suit specific business requirements, making it ideal for corporate headquarters, professional firms, or growing enterprises.

Completion: Expected September 2026

An exceptional opportunity to secure a modern office in one of Larnaca’s most prominent commercial locations.

READ MORE
READ LESS

AGENT INFORMATION

STELIOS STYLIANOU

Property Consultant

[email protected]

+357 99640461

STELIOS STYLIANOU

Property Consultant

[email protected]

STELIOS STYLIANOU

Property Consultant

[email protected]

+357 99640461

STELIOS STYLIANOU

Property Consultant

[email protected]

99640461

SIMILAR PROPERTIES

×
I'M INTERESTED
I'M INTERESTED
×

Clear Filters