I'M INTERESTED

Reference Number : P-109290

575sqm Residential Plot with Plans Larnaca, Psevdas

For Sale
Larnaca, Psevdas
€ 75.000
+ VAT
575
575

OVERVIEW

Category:

Land

Title Deed:

Yes

Plot:

575 m2

Energy Efficiency Rating:

N/A

VAT:

YES

Frontage:

22 m

Zone Name:

Η3

Zone Cover factor:

35%

Zone Build factor:

60%

Zone Max Height:

8.3m

Max Building floors:

2

FEATURES

Easy access to main roads

Investment opportunity

Quiet Area

PROPERTY DESCRIPTION

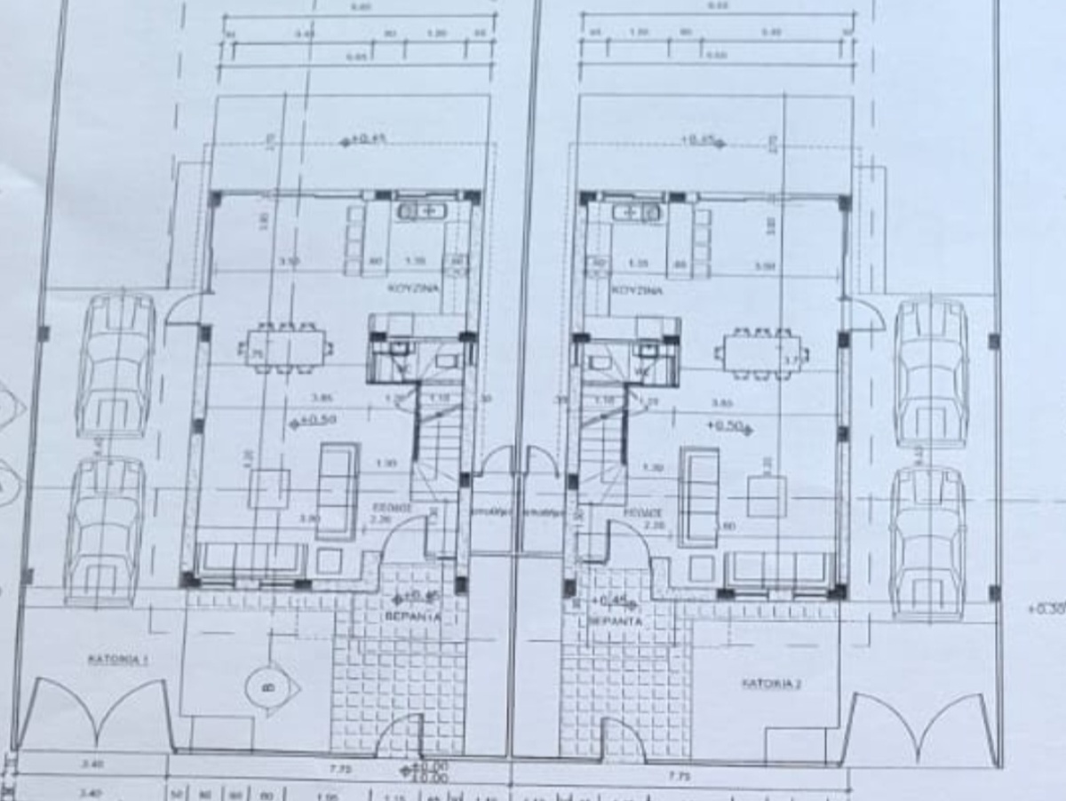
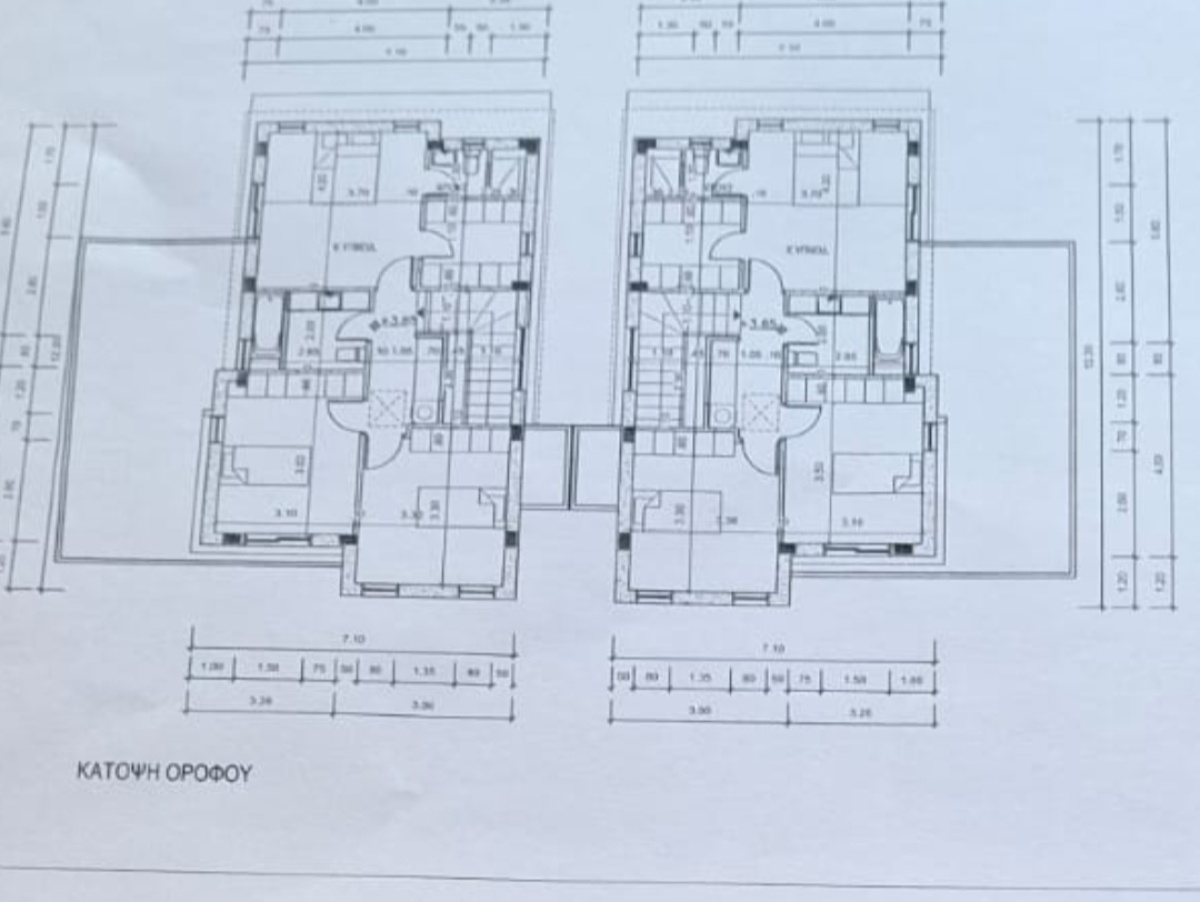
575sqm Residential Plot in Psevdas

Plans ready for the construction of 2 semi detached houses 175sqm each

with all utilities in place. 60% Density , 35% coverage , 2 floors and with a approx. frontage of 22 meters.

Price is Plus VAT

575sqm Residential Plot in Psevdas

Plans ready for the construction of 2 semi detached houses 175sqm each

with all utilities in place. 60% Density , 35% coverage , 2 floors and with a approx. frontage of 22 meters.

Price is Plus VAT

READ MORE
READ LESS

AGENT INFORMATION

STELIOS STYLIANOU

Property Consultant

ststylianou@starmax.cy

+357 99640461

STELIOS STYLIANOU

Property Consultant

ststylianou@starmax.cy

STELIOS STYLIANOU

Property Consultant

ststylianou@starmax.cy

+357 99640461

STELIOS STYLIANOU

Property Consultant

ststylianou@starmax.cy

99640461

SIMILAR PROPERTIES

×
I'M INTERESTED
I'M INTERESTED
×

Clear Filters